Features
You will be able to choose from a wide variety of room configurations. Each setup can be customized to meet your specific requirements. The option of bringing in your favorite caterer is available upon request.
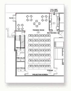
TRAINING ROOM
Our spacious training room features comfortable seating, WiFi, a digital projector, internet connectivity, a gourmet kitchen, and a variety of hardware configurations to suit your particular needs.
Layout Options
Easily configured to meet your requirements, the training room can be transformed in the following layouts to accommodate your group, big or small. Have a request other than what is pictured below; please indicate this when you submit your request for a reservation. We will work with your group to make this area most conducive to your individual meeting and training needs.

